• Zwora elektromagnetyczna SCOT EL-350WS

Symbol: 12958
Brak towaru
417.19
417.19
Program lojalnościowy dostępny jest tylko dla zalogowanych klientów.
Wpisz swój adres e-mail
Opinie
Wysyłka w ciągu 48 godzin
Cena przesyłki 15
Paczkomaty InPost 15
Kurier DPD 18
Kurier GLS 26
Dostępność 0 szt.
Zostaw telefon

Zwora elektromagnetyczna SCOT EL-350WS

Model: EL-350WS

Przeznaczenie

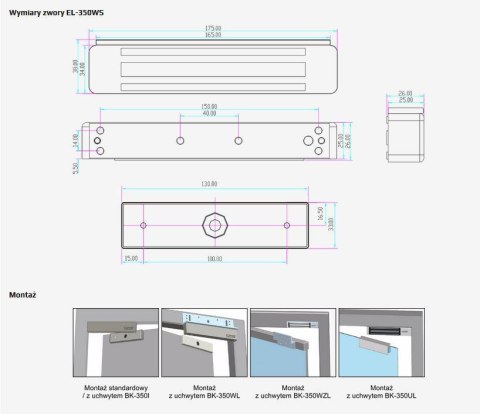
Zwory elektromagnetyczne SCOT są alternatywą dla powszechnie stosowanych w systemach kontroli dostępu elektrozaczepów. Zwora składa się z elementu wykonawczego zawierającego elektromagnes, montowanego na ramie drzwi, oraz metalowej płytki, umieszczanej na skrzydle drzwi. Zasilona cewka elektromagnesu przyciąga płytkę zabezpieczając w ten sposób wejście. W zależności od modelu zwory maksymalny nacisk na drzwi przy którym elektromagnes przyciąga metalową płytkę wynosi 180, 280, 350, 540 kg.

Zwory elektromagnetyczne stosuje się w systemach kontroli dostępu zamiennie z elektrozaczepami rewersyjnymi, czyli tam, gdzie przepisy bezpieczeństwa wymagają otwarcia drzwi po zaniku napięcia w systemie kontroli: wyjściach ewakuacyjnych, przeciwpożarowych, budynkach użyteczności publicznej.

Zwora elektromagnetyczna nie posiada ruchomych elementów mechanicznych, przez co praktycznie nie występuje zużycie elementów urządzenia. Z tego względu stosowana jest w miejscach o dużym natężeniu ruchu, gdzie kontrolowane drzwi są często otwierane, eliminując konieczność stałej konserwacji.

Dodatkowe uchwyty montażowe typu „L", „ZL", „UL" pozwalają na montaż zwory praktycznie na każdych drzwiach.

Sygnalizacja

Zwora elektromagnetyczna wyposażona jest w przekaźnik NC, który może być wykorzystany w systemie kontroli dostępu informując o otwarciu / zamknięciu sterowanych drzwi. Dzięki temu możemy przekazać informację np. do systemu alarmowego, informując o stanie drzwi.

Odporność na warunki atmosferyczne

Konstrukcja zwory pozwala na montaż na zewnątrz budynków, przy zabezpieczeniach typu furtki, śluzy, itp.

Informacje dotyczące bezpieczeństwa

Dystrybutor:
Eltrox sp. z o.o
Adres e-mail: sklep@eltrox.pl
Adres: ul. Warszawska 74,
42-202 Częstochowa
Telefon 34 387 29 92

Osoba odpowiedzialna

GDE POLSKA
Świątnicka 88
32-031 Włosań
Poland

biuro@gde.pl

Nie ma jeszcze komentarzy ani ocen dla tego produktu.
  • Oceń

Jakość
Funkcjonalność
Cena
Podpis
Opinia